Elandberg 2

4708EW ROOSENDAAL

Verkocht

Soort woning Woonhuis

Bouwjaar 1986

Oppervlakte wonen 101 m²

Aantal slaapkamers 4

Kenmerken

Overdracht

Aangeboden sinds
7 maart 2025
Status
Verkocht
Aanvaarding
In overleg

Bouw

Soort woning
Woonhuis
Bouwjaar
1986
Soort dak
Zadeldak

Oppervlakten en inhoud

Oppervlakte wonen
101 m²
Oppervlakte overige inpandige ruimte
15 m²
Oppervlakte externe bergruimte
6 m²
Perceel
235 m²
Inhoud
415 m³

Indeling

Aantal kamers
5
Aantal slaapkamers
4
Aantal badkamers
1
Badkamervoorzieningen
Ligbad, toilet en wastafel
Aantal woonlagen
3 woonlagen

Energie

Energielabel
C
Isolatie
Dakisolatie, muurisolatie en gedeeltelijk dubbel glas
Verwarming
Cv-ketel
Warm water
Cv-ketel
Cv-ketel
Combiketel

Buitenruimte

Ligging
Aan rustige weg, in woonwijk en beschutte ligging
Tuin
Achtertuin en zijtuin

Bergruimte

Schuur/berging
Aangebouwd hout

Garage

Soort garage
Aangebouwd steen
Capaciteit
1
Voorzieningen
Elektra

Omschrijving

Interesse in een praktische hoekwoning voor de hele familie? Welkom bij Elandberg 2 in Roosendaal!
Deze woning is gebouwd in 1986 en biedt volop ruimte met 4 slaapkamers en een perceel van maar liefst van 235 m².

De woning ligt aan een rustige weg met een beschutte locatie en tegenover de woning bevindt zich een speeltuintje.
Er is voldoende openbare parkeergelegenheid en de mogelijkheid is er om op eigen terrein te parkeren en in de garage.

Begane grond: Entree/hal met meterkast, trapopgang, toilet en toegang tot woongedeelte. De gehele begane grond is voorzien van een laminaatvloer. Woonkamer gelegen aan de achterzijde met trapkast en deur naar achtertuin en in open verbinding met de keuken welke is gelegen aan de voorzijde. Keuken met gaskookplaat, afzuigkap, oven en spoelbak,

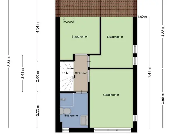
Eerste verdieping: Overloop met toegang tot3 slaapkamers en de badkamer met een bad, toilet en wastafel. Alle slaapkamers zijn voorzien van laminaatvloer.

Tweede verdieping: Midddels vaste trap te berieiken open zolderruimte met opsteling CV ketel en vierde slaapkamer..

Buiten: Verrassend ruime, zonnige tuin met bestrating, kunstgras en stenen berging en ontsluiting aan de voorzijde.

Bijzonderheden:
- Aantal slaapkamers: 4
- Er is een aangebouwde stenen garage met elektrische deur met naastgelegen een eigen oprit.

Dit prachtige hoekhuis is ideaal voor families vanwege de rustige ligging en de nabijheid van voorzieningen.
Waar wacht je nog op? Plan vandaag nog een bezichtiging! Wij zijn je graag van dienst!

Media

Locatie